Top.Mail.Ru

Новокосинская ул., д. 24, к. 3

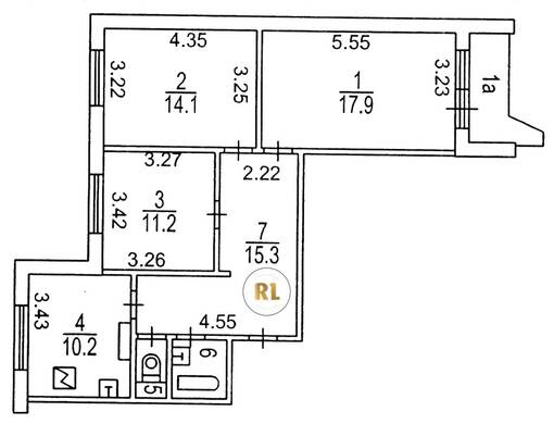
База каталог, Кол-во подъездов: 3, Имеется, П-44-1/17, Москва, Новокосино, Площадь парковки: 0, Пассажирский лифт: 3, От метро: 680, Восточный, нет, Наименьшее кол-во этажей: 17, Наибольшее кол-во этажей: 17, Новокосино, Кол-во помещений: 203, Кол-во нежилых помещений: 1, Год ввода в эксплуатацию: 1990, 3-комн, Кол-во жилых помещений: 202, D, дом 24, корпус 3, нет, да, да, да, да, да, Имеется, Грузовых лифтов: 3, Год постройки: 1990, Новокосинская улица, 37.863675, 55.739742
Свяжитесь со мной на счет цены
10 дн.
T55S739742L37S863675T

На карте


Условия сделки

Источник


Старт продаж

Возможно заинтересует