Top.Mail.Ru

Суздальская ул., д. 14, к. 2

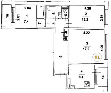
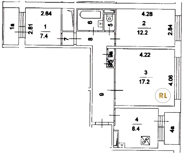
База каталог, Кол-во подъездов: 2, Имеется, П-30, Москва, Новокосино, Площадь парковки: 0, Пассажирский лифт: 4, От метро: 1110, Восточный, нет, Наименьшее кол-во этажей: 14, Наибольшее кол-во этажей: 14, Новокосино, Кол-во помещений: 111, Кол-во нежилых помещений: 1, Год ввода в эксплуатацию: 1991, 3-комн, Кол-во жилых помещений: 110, D, дом 14, корпус 2, нет, да, да, да, да, нет, Имеется, Грузовых лифтов: 0, Год постройки: 1991, Суздальская улица, 37.849077, 55.739960
Свяжитесь со мной на счет цены
10 дн.
T55S739960L37S849077T

На карте


Условия сделки

Источник


Старт продаж

Возможно заинтересует