Top.Mail.Ru

Городецкая ул., д. 8, к. 3

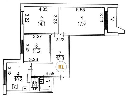
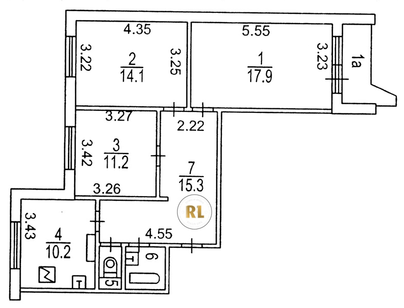
База каталог, Кол-во подъездов: 3, Имеется, П-44-1/17, Москва, Новокосино, Площадь парковки: 0, Пассажирский лифт: 3, От метро: 590, Восточный, нет, Наименьшее кол-во этажей: 17, Наибольшее кол-во этажей: 17, Новокосино, Кол-во помещений: 205, Кол-во нежилых помещений: 1, Год ввода в эксплуатацию: 1989, 3-комн, Кол-во жилых помещений: 204, D, дом 8, корпус 3, да, да, да, да, да, да, Имеется, Грузовых лифтов: 3, Год постройки: 1989, Городецкая улица, 37.864861, 55.739985
16 997 000 Р
10 дн.
T55S739985L37S864861T
+

На карте


Условия сделки

Источник


Старт продаж