Top.Mail.Ru

Рублевское шоссе, д. 14, к. 3

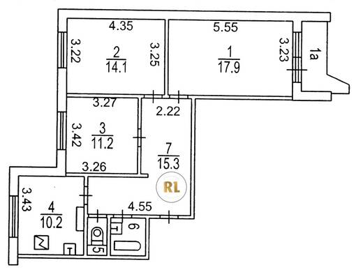
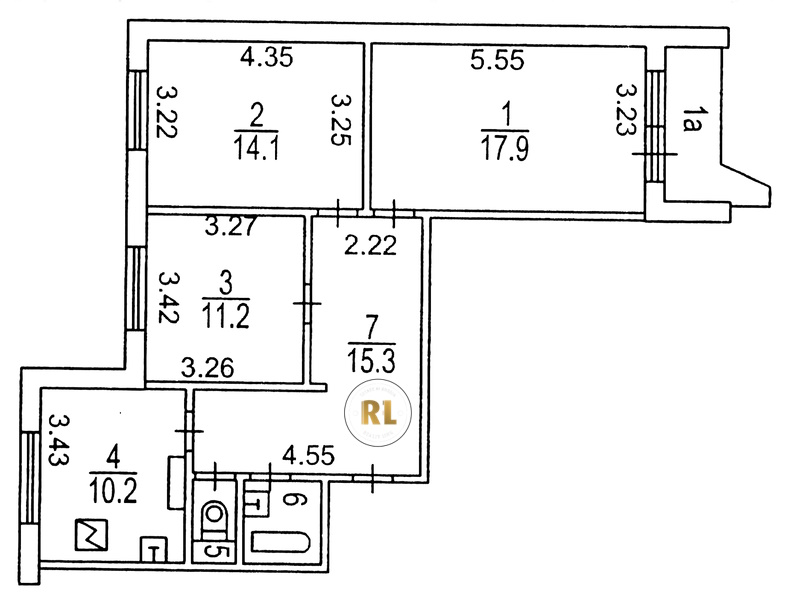
База каталог, Кол-во подъездов: 7, Отсутствует, П-44, Москва, Кунцево, Площадь парковки: 1162, Пассажирский лифт: 7, От метро: 1410, Западный, да, Наименьшее кол-во этажей: 1, Наибольшее кол-во этажей: 17, Кунцевская, Кол-во помещений: 899, Кол-во нежилых помещений: 3, Год ввода в эксплуатацию: 1993, 3-комн, Кол-во жилых помещений: 896, Не присвоен, дом 14, корпус 3, нет, да, да, да, да, нет, Имеется, Грузовых лифтов: 7, Год постройки: 1993, Рублевское шоссе, 37.438206, 55.740005
Свяжитесь со мной на счет цены
10 дн.
T55S740005L37S438206T

На карте


Условия сделки

Источник


Старт продаж

Возможно заинтересует