Top.Mail.Ru

улица Олеко Дундича, д. 13, к. 1

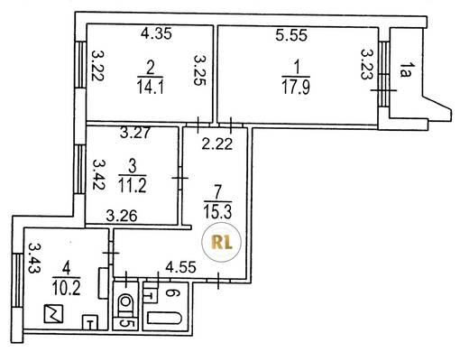
База каталог, Кол-во подъездов: 5, П-44, Москва, Филевский Парк, Площадь парковки: 21,12, Пассажирский лифт: 5, От метро: 630, Западный, да, Наименьшее кол-во этажей: 17, Наибольшее кол-во этажей: 17, Багратионовская, Кол-во помещений: 338, Кол-во нежилых помещений: 0, Год ввода в эксплуатацию: 1988, 3-комн, Кол-во жилых помещений: 338, Не присвоен, дом 13, корпус 1, нет, да, да, да, да, да, Отсутствует, Грузовых лифтов: 5, Год постройки: 1988, улица Олеко Дундича, 37.491440, 55.740309
Свяжитесь со мной на счет цены
10 дн.
T55S740309L37S491440T

На карте


Условия сделки

Источник


Старт продаж

Возможно заинтересует