Top.Mail.Ru

Суздальская ул., д. 14, к. 4

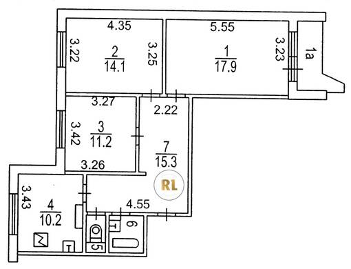
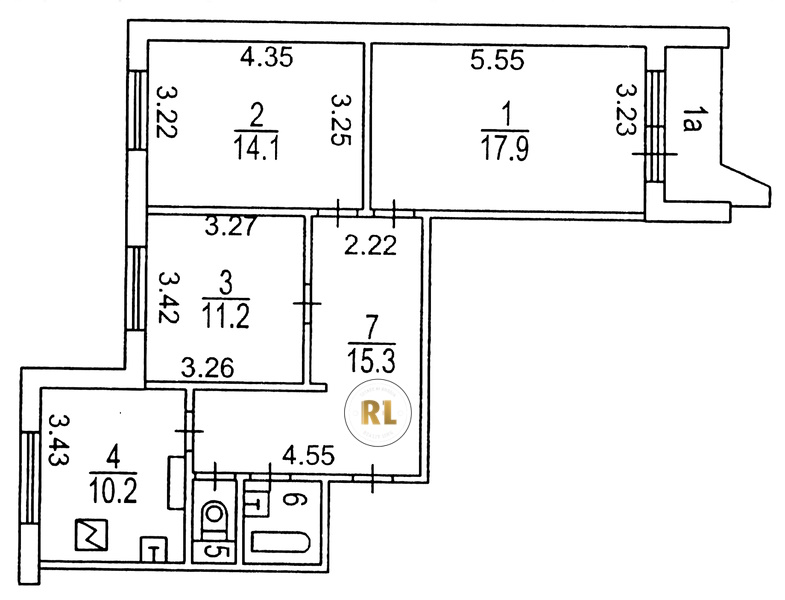
База каталог, Кол-во подъездов: 5, Имеется, П-44, Москва, Новокосино, Площадь парковки: 0, Пассажирский лифт: 5, От метро: 930, Восточный, нет, Наименьшее кол-во этажей: 14, Наибольшее кол-во этажей: 14, Новокосино, Кол-во помещений: 276, Кол-во нежилых помещений: 1, Год ввода в эксплуатацию: 1995, 3-комн, Кол-во жилых помещений: 275, D, дом 14, корпус 4, нет, да, да, да, да, да, Имеется, Грузовых лифтов: 5, Год постройки: 1995, Суздальская улица, 37.851548, 55.740335
Свяжитесь со мной на счет цены
10 дн.
T55S740335L37S851548T

На карте


Условия сделки

Источник


Старт продаж

Возможно заинтересует