Top.Mail.Ru

Вешняковская ул., д. 1, к. 2

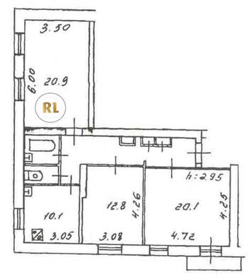
База каталог, Кол-во подъездов: 4, Отсутствует, II-05, Москва, Вешняки, Площадь парковки: 0, Пассажирский лифт: 4, От метро: 1540, Восточный, нет, Наименьшее кол-во этажей: 9, Наибольшее кол-во этажей: 9, Новогиреево, Кол-во помещений: 144, Кол-во нежилых помещений: 0, Год ввода в эксплуатацию: 1972, 3-комн, Кол-во жилых помещений: 144, Не присвоен, дом 1, корпус 2, нет, да, да, да, да, нет, Отсутствует, Грузовых лифтов: 0, Год постройки: 1972, Вешняковская улица, 37.819550, 55.740390
Свяжитесь со мной на счет цены
10 дн.
T55S740390L37S819550T

На карте


Условия сделки

Источник


Старт продаж

Возможно заинтересует