Top.Mail.Ru

Партизанская ул., д. 49, к. 3

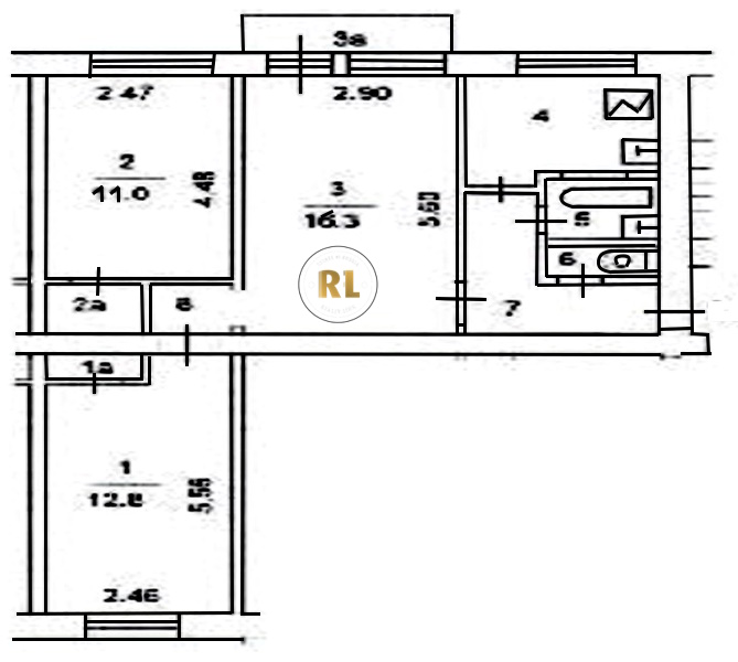
База каталог, Кол-во подъездов: 4, Отсутствует, I-511, Москва, Кунцево, Площадь парковки: 327, Пассажирский лифт: 0, От метро: 1290, Западный, да, Наименьшее кол-во этажей: 5, Наибольшее кол-во этажей: 5, Молодёжная, Кол-во помещений: 230, Кол-во нежилых помещений: 115, Год ввода в эксплуатацию: 1962, 3-комн, Кол-во жилых помещений: 115, Не присвоен, дом 49, корпус 3, нет, да, да, да, да, нет, Имеется, Грузовых лифтов: 0, Год постройки: 1962, Партизанская улица, 37.400872, 55.740441
Свяжитесь со мной на счет цены
10 дн.
T55S740441L37S400872T

На карте


Условия сделки

Источник


Старт продаж

Возможно заинтересует