Top.Mail.Ru

Новокосинская ул., д. 17, к. 6

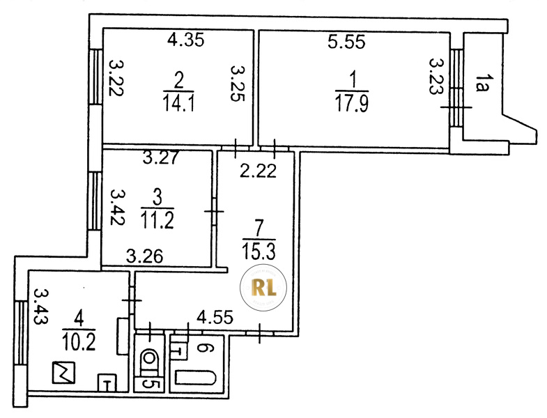
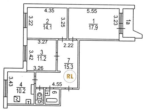
База каталог, Кол-во подъездов: 3, Имеется, П-44, Москва, Новокосино, Площадь парковки: 0, Пассажирский лифт: 3, От метро: 710, Восточный, нет, Наименьшее кол-во этажей: 14, Наибольшее кол-во этажей: 14, Новокосино, Кол-во помещений: 169, Кол-во нежилых помещений: 1, Год ввода в эксплуатацию: 1995, 3-комн, Кол-во жилых помещений: 168, E, дом 17, корпус 6, нет, да, да, да, да, да, Имеется, Грузовых лифтов: 3, Год постройки: 1995, Новокосинская улица, 37.855545, 55.740522
Свяжитесь со мной на счет цены
10 дн.
T55S740522L37S855545T

На карте


Условия сделки

Источник


Старт продаж

Возможно заинтересует