Top.Mail.Ru

Коренная ул., д. 8, к. 2

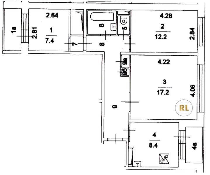
База каталог, Кол-во подъездов: 2, П-30, Москва, Новогиреево, Площадь парковки: 475, Пассажирский лифт: 2, От метро: 1480, Восточный, да, Наименьшее кол-во этажей: 12, Наибольшее кол-во этажей: 12, Перово, Кол-во помещений: 94, Кол-во нежилых помещений: 1, Год ввода в эксплуатацию: 1982, 3-комн, Кол-во жилых помещений: 93, дом 8, корпус 2, нет, да, да, да, да, нет, Имеется, Грузовых лифтов: 0, Год постройки: 1982, Коренная улица, 37.777994, 55.740527
Свяжитесь со мной на счет цены
10 дн.
T55S740527L37S777994T

На карте


Условия сделки

Источник


Старт продаж

Возможно заинтересует