Top.Mail.Ru

Суздальская ул., д. 20, к. 6

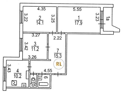
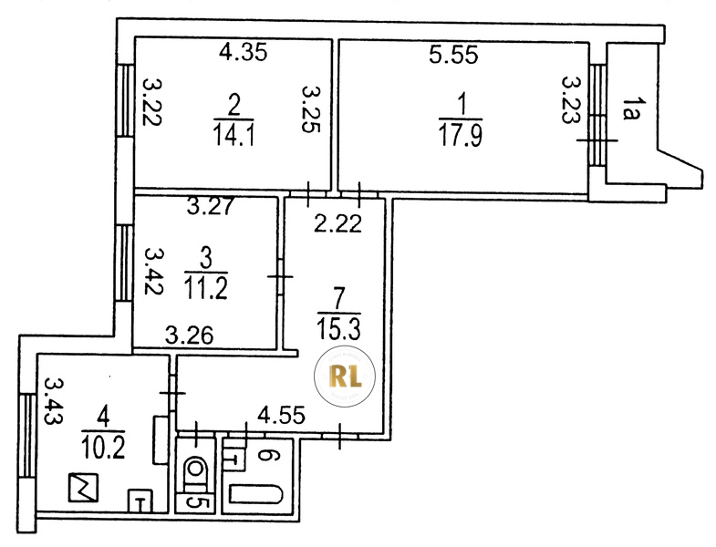
База каталог, Кол-во подъездов: 5, Имеется, П-44, Москва, Новокосино, Площадь парковки: 0, Пассажирский лифт: 5, От метро: 850, Восточный, нет, Наименьшее кол-во этажей: 14, Наибольшее кол-во этажей: 14, Новокосино, Кол-во помещений: 281, Кол-во нежилых помещений: 2, Год ввода в эксплуатацию: 1995, 3-комн, Кол-во жилых помещений: 279, D, дом 20, корпус 6, нет, да, да, да, да, да, Имеется, Грузовых лифтов: 5, Год постройки: 1995, Суздальская улица, 37.852976, 55.740527
Свяжитесь со мной на счет цены
10 дн.
T55S740527L37S852976T

На карте


Условия сделки

Источник


Старт продаж

Возможно заинтересует