Top.Mail.Ru

Партизанская ул., д. 49, к. 2

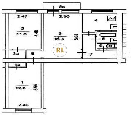
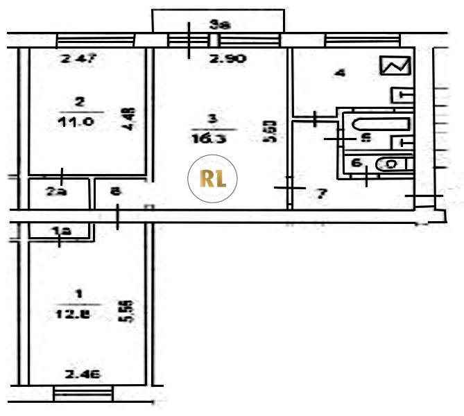
База каталог, Кол-во подъездов: 4, Отсутствует, I-511, Москва, Кунцево, Площадь парковки: 327, Пассажирский лифт: 0, От метро: 1300, Западный, да, Наименьшее кол-во этажей: 5, Наибольшее кол-во этажей: 5, Молодёжная, Кол-во помещений: 320, Кол-во нежилых помещений: 160, Год ввода в эксплуатацию: 1962, 3-комн, Кол-во жилых помещений: 160, Не присвоен, дом 49, корпус 2, нет, да, да, да, да, нет, Имеется, Грузовых лифтов: 0, Год постройки: 1962, Партизанская улица, 37.401950, 55.740598
Свяжитесь со мной на счет цены
10 дн.
T55S740598L37S401950T

На карте


Условия сделки

Источник


Старт продаж

Возможно заинтересует