Top.Mail.Ru

Новокосинская ул., д. 21

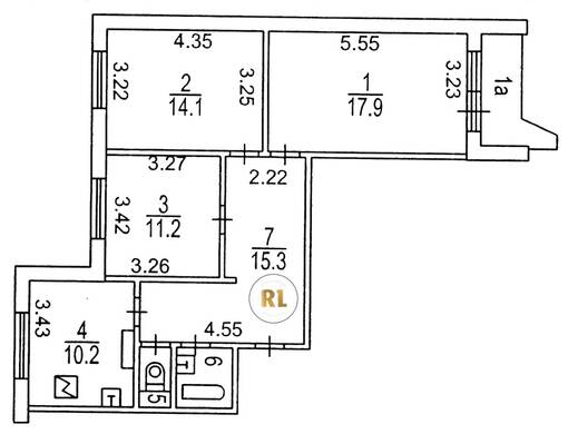
База каталог, Кол-во подъездов: 3, Имеется, П-44, Москва, Новокосино, Площадь парковки: 0, Пассажирский лифт: 3, От метро: 470, Восточный, нет, Наименьшее кол-во этажей: 14, Наибольшее кол-во этажей: 14, Новокосино, Кол-во помещений: 168, Кол-во нежилых помещений: 1, Год ввода в эксплуатацию: 1995, 3-комн, Кол-во жилых помещений: 167, D, дом 21, да, да, да, да, да, да, Имеется, Грузовых лифтов: 3, Год постройки: 1995, Новокосинская улица, 37.859390, 55.740877
Свяжитесь со мной на счет цены
10 дн.
T55S740877L37S859390T

На карте


Условия сделки

Источник


Старт продаж

Возможно заинтересует