Top.Mail.Ru

Партизанская ул., д. 49, к. 1

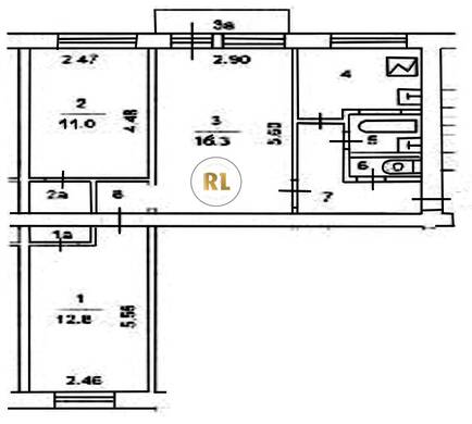
База каталог, Кол-во подъездов: 4, Отсутствует, I-511, Москва, Кунцево, Площадь парковки: 327, Пассажирский лифт: 0, От метро: 1360, Западный, да, Наименьшее кол-во этажей: 5, Наибольшее кол-во этажей: 5, Молодёжная, Кол-во помещений: 161, Кол-во нежилых помещений: 1, Год ввода в эксплуатацию: 1961, 3-комн, Кол-во жилых помещений: 160, Не присвоен, дом 49, корпус 1, нет, да, да, да, да, нет, Имеется, Грузовых лифтов: 0, Год постройки: 1961, Партизанская улица, 37.401806, 55.741201
17 500 000 Р
10 дн.
T55S741201L37S401806T
+

На карте


Условия сделки

Источник