Top.Mail.Ru

Новокосинская ул., д. 38, к. 3

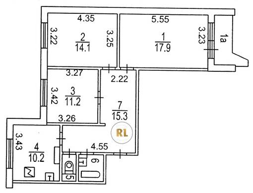
База каталог, Кол-во подъездов: 3, Имеется, П-44, Москва, Новокосино, Площадь парковки: 0, Пассажирский лифт: 3, От метро: 620, Восточный, нет, Наименьшее кол-во этажей: 17, Наибольшее кол-во этажей: 17, Новокосино, Кол-во помещений: 204, Кол-во нежилых помещений: 1, Год ввода в эксплуатацию: 1987, 3-комн, Кол-во жилых помещений: 203, Не присвоен, дом 38, корпус 3, нет, да, да, да, да, да, Имеется, Грузовых лифтов: 3, Год постройки: 1987, Новокосинская улица, 37.870682, 55.741358
Свяжитесь со мной на счет цены
10 дн.
T55S741358L37S870682T

На карте


Условия сделки

Источник


Старт продаж

Возможно заинтересует