Top.Mail.Ru

Салтыковская ул., д. 37, к. 1

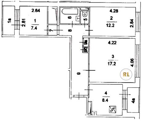
База каталог, Кол-во подъездов: 4, П-30, Москва, Новокосино, Пассажирский лифт: 8, От метро: 960, Восточный, да, Наименьшее кол-во этажей: 1, Наибольшее кол-во этажей: 14, Новокосино, Кол-во помещений: 222, Кол-во нежилых помещений: 2, Год ввода в эксплуатацию: 1987, 3-комн, Кол-во жилых помещений: 220, дом 37, корпус 1, нет, да, да, да, да, да, Грузовых лифтов: 0, Год постройки: 1987, Салтыковская улица, 37.876386, 55.741404
Свяжитесь со мной на счет цены
10 дн.
T55S741404L37S876386T

На карте


Условия сделки

Источник


Старт продаж

Возможно заинтересует