Top.Mail.Ru

Суздальская ул., д. 18, к. 6

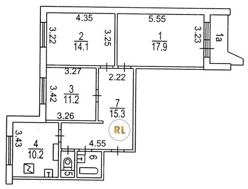
База каталог, Кол-во подъездов: 2, Имеется, П-44, Москва, Новокосино, Площадь парковки: 0, Пассажирский лифт: 2, От метро: 810, Восточный, нет, Наименьшее кол-во этажей: 14, Наибольшее кол-во этажей: 14, Новокосино, Кол-во помещений: 111, Кол-во нежилых помещений: 2, Год ввода в эксплуатацию: 1997, 3-комн, Кол-во жилых помещений: 109, D, дом 18, корпус 6, нет, да, да, да, да, да, Имеется, Грузовых лифтов: 2, Год постройки: 1997, Суздальская улица, 37.852212, 55.741414
Свяжитесь со мной на счет цены
10 дн.
T55S741414L37S852212T

На карте


Условия сделки

Источник


Старт продаж

Возможно заинтересует