Top.Mail.Ru

Салтыковская ул., д. 37, к. 2

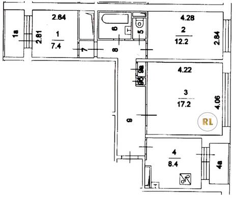
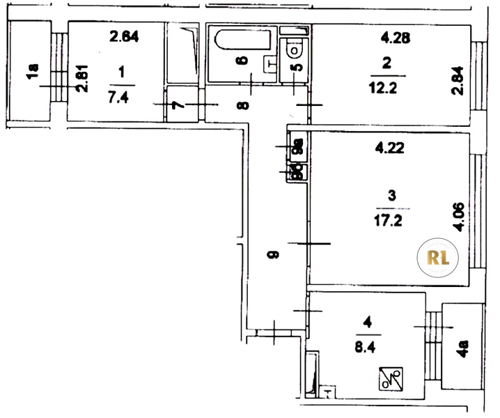
База каталог, Кол-во подъездов: 2, Имеется, П-30, Москва, Новокосино, Площадь парковки: 0, Пассажирский лифт: 4, От метро: 1020, Восточный, нет, Наименьшее кол-во этажей: 14, Наибольшее кол-во этажей: 14, Новокосино, Кол-во помещений: 111, Кол-во нежилых помещений: 1, Год ввода в эксплуатацию: 1988, 3-комн, Кол-во жилых помещений: 110, E, дом 37, корпус 2, нет, да, да, да, да, да, Имеется, Грузовых лифтов: 0, Год постройки: 1988, Салтыковская улица, 37.877212, 55.741693
Свяжитесь со мной на счет цены
10 дн.
T55S741693L37S877212T

На карте


Условия сделки

Источник


Старт продаж

Возможно заинтересует