Top.Mail.Ru

Партизанская ул., д. 36

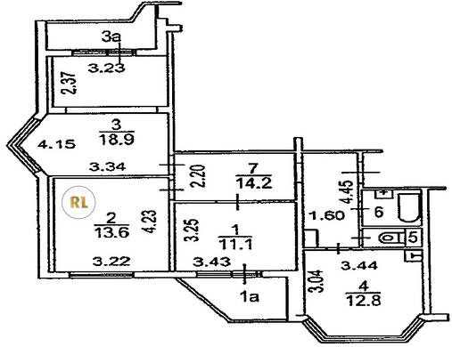
База каталог, Кол-во подъездов: 6, Отсутствует, П-44M, Москва, Кунцево, Площадь парковки: 0, Пассажирский лифт: 6, От метро: 1220, Западный, нет, Наименьшее кол-во этажей: 17, Наибольшее кол-во этажей: 17, Молодёжная, Кол-во помещений: 405, Кол-во нежилых помещений: 9, Год ввода в эксплуатацию: 1999, 3-комн, Кол-во жилых помещений: 396, Не присвоен, дом 36, нет, да, да, да, да, нет, Отсутствует, Грузовых лифтов: 6, Год постройки: 1999, Партизанская улица, 37.402641, 55.741754
Свяжитесь со мной на счет цены
10 дн.
T55S741754L37S402641T

На карте


Условия сделки

Источник


Старт продаж

Возможно заинтересует