Top.Mail.Ru

Новокосинская ул., д. 38, к. 2

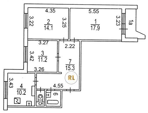
База каталог, Кол-во подъездов: 2, Имеется, П-44-1/17, Москва, Новокосино, Площадь парковки: 0, Пассажирский лифт: 2, От метро: 550, Восточный, нет, Наименьшее кол-во этажей: 17, Наибольшее кол-во этажей: 17, Новокосино, Кол-во помещений: 132, Кол-во нежилых помещений: 4, Год ввода в эксплуатацию: 1987, 3-комн, Кол-во жилых помещений: 128, В, дом 38, корпус 2, да, да, да, да, да, да, Имеется, Грузовых лифтов: 2, Год постройки: 1987, Новокосинская улица, 37.870242, 55.741880
Свяжитесь со мной на счет цены
10 дн.
T55S741880L37S870242T

На карте


Условия сделки

Источник


Старт продаж

Возможно заинтересует