Top.Mail.Ru

Руновский переулок, д. 11/13, стр. 2

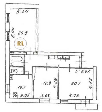
База каталог, Кол-во подъездов: 3, Отсутствует, II-05, Москва, Замоскворечье, Площадь парковки: 0, Пассажирский лифт: 0, От метро: 230, Центральный, нет, Наименьшее кол-во этажей: 0, Наибольшее кол-во этажей: 5, Новокузнецкая, Кол-во помещений: 48, Кол-во нежилых помещений: 4, Год ввода в эксплуатацию: 1957, 3-комн, Кол-во жилых помещений: 44, Не присвоен, дом 11/13, строение 2, да, да, да, да, да, да, Имеется, Грузовых лифтов: 0, Год постройки: 1957, Руновский переулок, 37.632125, 55.742093
Свяжитесь со мной на счет цены
10 дн.
T55S742093L37S632125T

На карте


Условия сделки

Источник


Старт продаж

Возможно заинтересует