Top.Mail.Ru

Суздальская ул., д. 18, к. 5

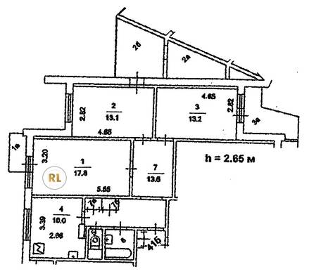
База каталог, Кол-во подъездов: 2, Имеется, П-3/16, Москва, Новокосино, Площадь парковки: 0, Пассажирский лифт: 2, От метро: 780, Восточный, нет, Наименьшее кол-во этажей: 17, Наибольшее кол-во этажей: 17, Новокосино, Кол-во помещений: 137, Кол-во нежилых помещений: 1, Год ввода в эксплуатацию: 1990, 3-комн, Кол-во жилых помещений: 136, D, дом 18, корпус 5, нет, да, да, да, да, да, Имеется, Грузовых лифтов: 2, Год постройки: 1990, Суздальская улица, 37.850730, 55.742428
Свяжитесь со мной на счет цены
10 дн.
T55S742428L37S850730T

На карте


Условия сделки

Источник


Старт продаж

Возможно заинтересует