Top.Mail.Ru

Новокосинская ул., д. 29

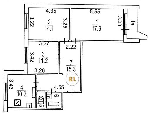
База каталог, Кол-во помещений: 196, П-44, Москва, Новокосино, Площадь парковки: 0, Пассажирский лифт: 3, От метро: 178, Восточный, нет, Наименьшее кол-во этажей: 17, Наибольшее кол-во этажей: 17, Новокосино, Кол-во подъездов: 3, Год ввода в эксплуатацию: 1990, Кол-во нежилых помещений: 1, 3-комн, Кол-во жилых помещений: 195, дом 29, да, да, да, да, да, да, Грузовых лифтов: 3, Год постройки: 1989, Новокосинская улица, 37.863262, 55.742478
Свяжитесь со мной на счет цены
10 дн.
T55S742478L37S863262T

На карте


Условия сделки

Источник


Старт продаж

Возможно заинтересует