Top.Mail.Ru

Новокосинская ул., д. 40

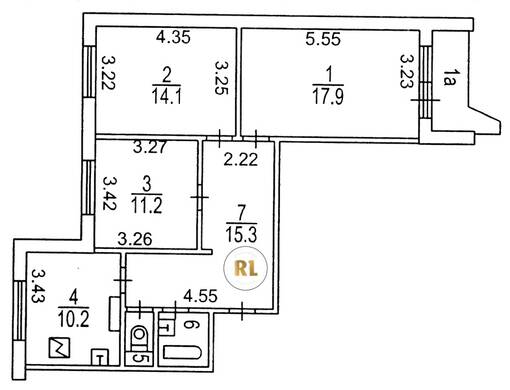
База каталог, Кол-во подъездов: 8, Имеется, П-44-1/17, Москва, Новокосино, Площадь парковки: 0, Пассажирский лифт: 8, От метро: 590, Восточный, нет, Наименьшее кол-во этажей: 17, Наибольшее кол-во этажей: 17, Новокосино, Кол-во помещений: 542, Кол-во нежилых помещений: 1, Год ввода в эксплуатацию: 1987, 3-комн, Кол-во жилых помещений: 541, D, дом 40, да, да, да, да, да, да, Имеется, Грузовых лифтов: 8, Год постройки: 1987, Новокосинская улица, 37.872999, 55.742625
15 700 000 Р
10 дн.
T55S742625L37S872999T
+

На карте


Условия сделки

Источник


Старт продаж