Top.Mail.Ru

Суздальская ул., д. 18, к. 4

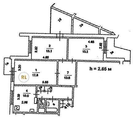
База каталог, Кол-во подъездов: 2, Имеется, П-3-2/16, Москва, Новокосино, Площадь парковки: 0, Пассажирский лифт: 2, От метро: 870, Восточный, нет, Наименьшее кол-во этажей: 17, Наибольшее кол-во этажей: 17, Новокосино, Кол-во помещений: 136, Кол-во нежилых помещений: 1, Год ввода в эксплуатацию: 1990, 3-комн, Кол-во жилых помещений: 135, D, дом 18, корпус 4, нет, да, да, да, да, да, Имеется, Грузовых лифтов: 2, Год постройки: 1990, Суздальская улица, 37.849958, 55.742640
Свяжитесь со мной на счет цены
10 дн.
T55S742640L37S849958T

На карте


Условия сделки

Источник


Старт продаж

Возможно заинтересует