Top.Mail.Ru

Суздальская ул., д. 20, к. 3

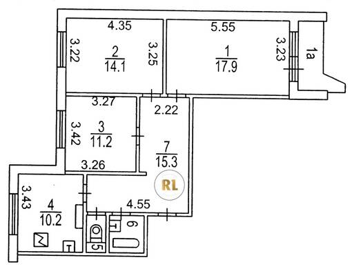
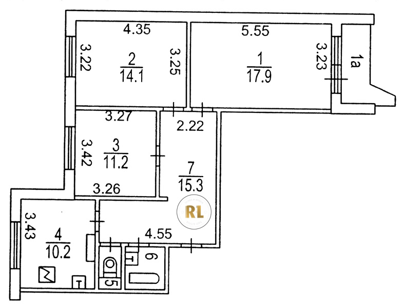
База каталог, Кол-во помещений: 111, П-44, Москва, Новокосино, Площадь парковки: 0, Пассажирский лифт: 4, От метро: 600, Восточный, нет, Наименьшее кол-во этажей: 14, Наибольшее кол-во этажей: 14, Новокосино, Кол-во подъездов: 2, Год ввода в эксплуатацию: 1991, Кол-во нежилых помещений: 1, 3-комн, Кол-во жилых помещений: 110, дом 20, корпус 3, нет, да, да, да, да, да, Грузовых лифтов: 0, Год постройки: 1991, Суздальская улица, 37.853236, 55.742853
Свяжитесь со мной на счет цены
10 дн.
T55S742853L37S853236T

На карте


Условия сделки

Источник


Старт продаж

Возможно заинтересует