Top.Mail.Ru

Кусковская ул., д. 33

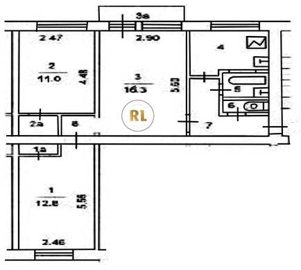
База каталог, Кол-во подъездов: 3, I-511-130/37, Москва, Новогиреево, Площадь парковки: 800, Пассажирский лифт: 0, От метро: 990, Восточный, да, Наименьшее кол-во этажей: 5, Наибольшее кол-во этажей: 5, Перово, Кол-во помещений: 130, Кол-во нежилых помещений: 0, Год ввода в эксплуатацию: 1969, 3-комн, Кол-во жилых помещений: 130, Не присвоен, дом 33, нет, да, да, да, да, да, Грузовых лифтов: 0, Год постройки: 1969, Кусковская улица, 37.787031, 55.742919
Свяжитесь со мной на счет цены
10 дн.
T55S742919L37S787031T

На карте


Условия сделки

Источник


Старт продаж

Возможно заинтересует