Top.Mail.Ru

Суздальская ул., д. 24, к. 2

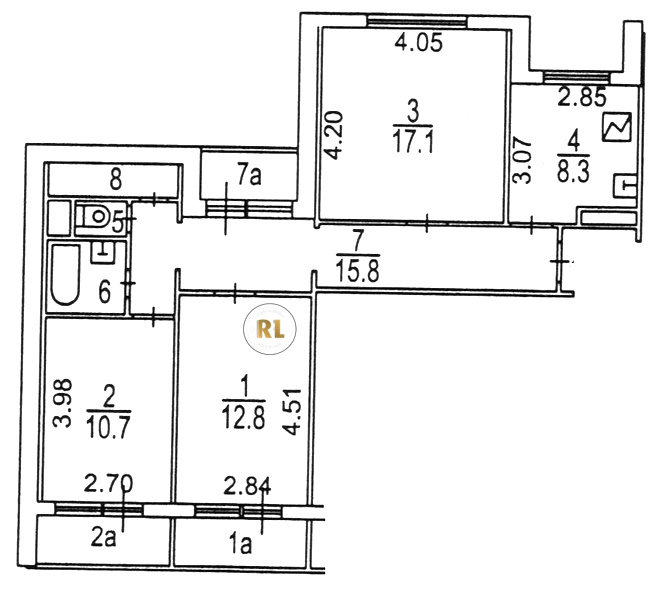
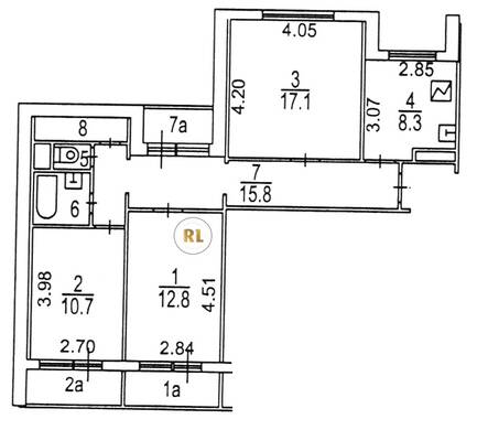
База каталог, Кол-во подъездов: 3, Имеется, П-55, Москва, Новокосино, Площадь парковки: 0, Пассажирский лифт: 6, От метро: 300, Восточный, нет, Наименьшее кол-во этажей: 14, Наибольшее кол-во этажей: 14, Новокосино, Кол-во помещений: 133, Кол-во нежилых помещений: 3, Год ввода в эксплуатацию: 1992, 3-комн, Кол-во жилых помещений: 130, D, дом 24, корпус 2, да, да, да, да, да, да, Имеется, Грузовых лифтов: 0, Год постройки: 1992, Суздальская улица, 37.858141, 55.742990
Свяжитесь со мной на счет цены
10 дн.
T55S742990L37S858141T

На карте


Условия сделки

Источник


Старт продаж

Возможно заинтересует