Top.Mail.Ru

Новокосинская ул., д. 44

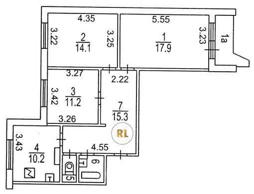
База каталог, Кол-во подъездов: 4, Имеется, П-44-1/17, Москва, Новокосино, Площадь парковки: 0, Пассажирский лифт: 4, От метро: 770, Восточный, нет, Наименьшее кол-во этажей: 17, Наибольшее кол-во этажей: 17, Новокосино, Кол-во помещений: 272, Кол-во нежилых помещений: 1, Год ввода в эксплуатацию: 1987, 3-комн, Кол-во жилых помещений: 271, E, дом 44, нет, да, да, да, да, да, Имеется, Грузовых лифтов: 4, Год постройки: 1987, Новокосинская улица, 37.875775, 55.743203
Свяжитесь со мной на счет цены
10 дн.
T55S743203L37S875775T

На карте


Условия сделки

Источник


Старт продаж

Возможно заинтересует