Top.Mail.Ru

Новокосинская ул., д. 43

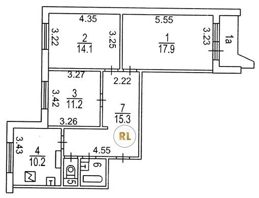
База каталог, Кол-во подъездов: 3, Имеется, П-44-1/17, Москва, Новокосино, Площадь парковки: 0, Пассажирский лифт: 3, От метро: 400, Восточный, нет, Наименьшее кол-во этажей: 17, Наибольшее кол-во этажей: 17, Новокосино, Кол-во помещений: 200, Кол-во нежилых помещений: 4, Год ввода в эксплуатацию: 1987, 3-комн, Кол-во жилых помещений: 196, D, дом 43, да, да, да, да, да, да, Имеется, Грузовых лифтов: 3, Год постройки: 1987, Новокосинская улица, 37.870825, 55.743243
Свяжитесь со мной на счет цены
10 дн.
T55S743243L37S870825T

На карте


Условия сделки

Источник


Старт продаж

Возможно заинтересует