Top.Mail.Ru

Оршанская ул., д. 11

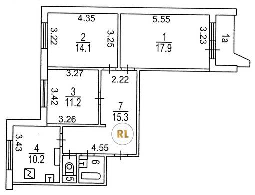
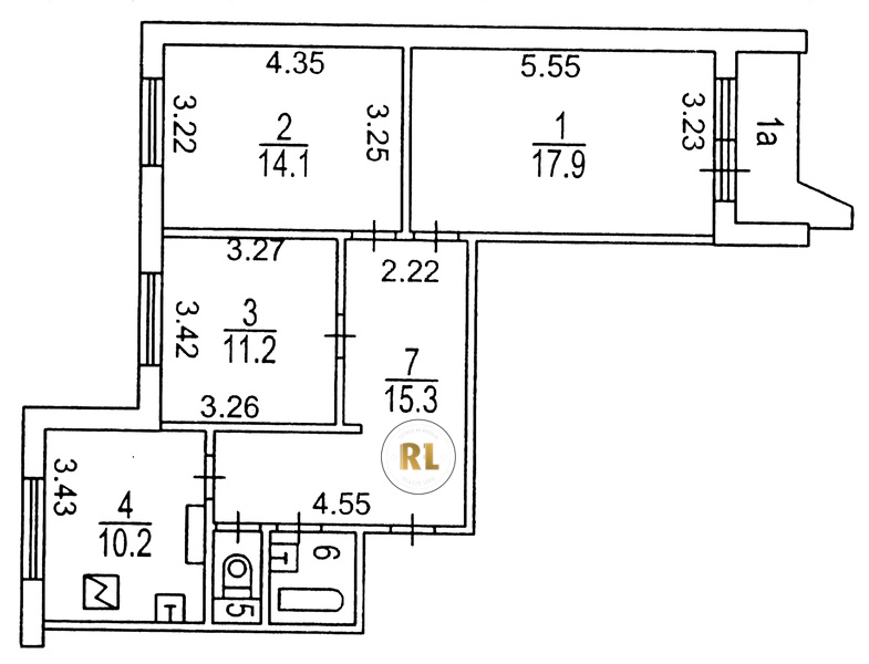
База каталог, Кол-во подъездов: 4, Отсутствует, П-44, Москва, Кунцево, Площадь парковки: 669, Пассажирский лифт: 4, От метро: 1210, Западный, да, Наименьшее кол-во этажей: 17, Наибольшее кол-во этажей: 17, Молодёжная, Кол-во помещений: 514, Кол-во нежилых помещений: 2, Год ввода в эксплуатацию: 1996, 3-комн, Кол-во жилых помещений: 512, Не присвоен, дом 11, нет, да, да, да, да, нет, Имеется, Грузовых лифтов: 4, Год постройки: 1996, Оршанская улица, 37.402237, 55.743289
Свяжитесь со мной на счет цены
10 дн.
T55S743289L37S402237T

На карте


Условия сделки

Источник


Старт продаж

Возможно заинтересует