Top.Mail.Ru

Новокосинская ул., д. 45

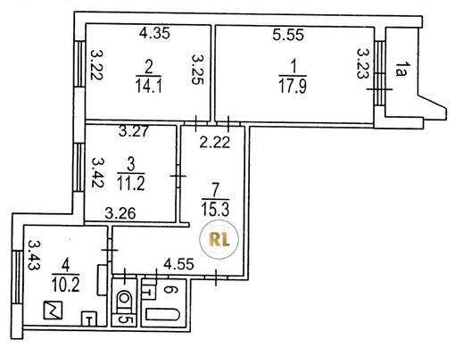
База каталог, Кол-во подъездов: 4, Имеется, П-44-1/17, Москва, Новокосино, Площадь парковки: 0, Пассажирский лифт: 4, От метро: 490, Восточный, нет, Наименьшее кол-во этажей: 17, Наибольшее кол-во этажей: 17, Новокосино, Кол-во помещений: 266, Кол-во нежилых помещений: 2, Год ввода в эксплуатацию: 1987, 3-комн, Кол-во жилых помещений: 264, D, дом 45, да, да, да, да, да, да, Имеется, Грузовых лифтов: 4, Год постройки: 1987, Новокосинская улица, 37.872020, 55.743340
Свяжитесь со мной на счет цены
10 дн.
T55S743340L37S872020T

На карте


Условия сделки

Источник


Старт продаж

Возможно заинтересует