Top.Mail.Ru

Суздальская ул., д. 26, к. 2

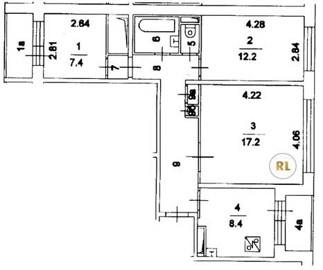
База каталог, Кол-во подъездов: 3, Имеется, П-30, Москва, Новокосино, Площадь парковки: 0, Пассажирский лифт: 6, От метро: 88, Восточный, нет, Наименьшее кол-во этажей: 14, Наибольшее кол-во этажей: 14, Новокосино, Кол-во помещений: 134, Кол-во нежилых помещений: 4, Год ввода в эксплуатацию: 1991, 3-комн, Кол-во жилых помещений: 130, D, дом 26, корпус 2, да, да, да, да, да, да, Имеется, Грузовых лифтов: 0, Год постройки: 1991, Суздальская улица, 37.861474, 55.743365
Свяжитесь со мной на счет цены
10 дн.
T55S743365L37S861474T

На карте


Условия сделки

Источник


Старт продаж

Возможно заинтересует