Top.Mail.Ru

Суздальская ул., д. 26, к. 3

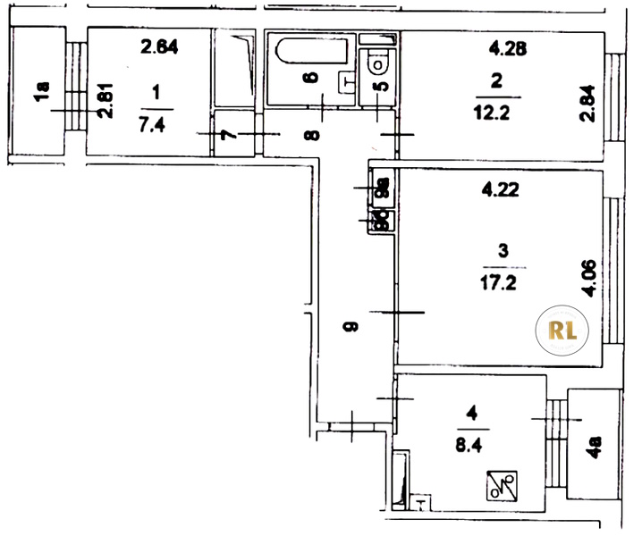
База каталог, Кол-во подъездов: 2, Имеется, П-30, Москва, Новокосино, Площадь парковки: 0, Пассажирский лифт: 4, От метро: 60, Восточный, нет, Наименьшее кол-во этажей: 14, Наибольшее кол-во этажей: 14, Новокосино, Кол-во помещений: 110, Кол-во нежилых помещений: 0, Год ввода в эксплуатацию: 1991, 3-комн, Кол-во жилых помещений: 110, D, дом 26, корпус 3, да, да, да, да, да, да, Имеется, Грузовых лифтов: 0, Год постройки: 1991, Суздальская улица, 37.862354, 55.743406
Свяжитесь со мной на счет цены
10 дн.
T55S743406L37S862354T

На карте


Условия сделки

Источник


Старт продаж

Возможно заинтересует