Top.Mail.Ru

Перовская ул., д. 66, к. 7

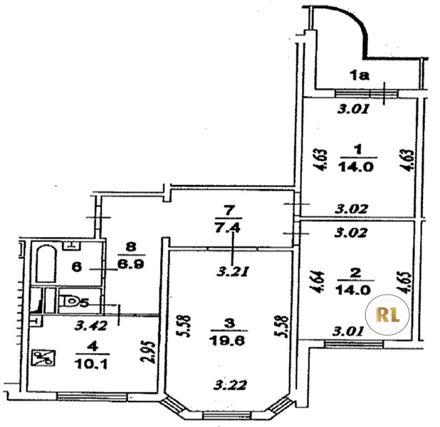
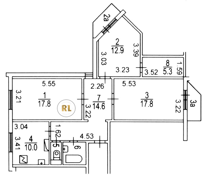
База каталог, Кол-во подъездов: 4, Имеется, П-3M, Москва, Новогиреево, Площадь парковки: 345, Пассажирский лифт: 4, От метро: 1450, Восточный, да, Наименьшее кол-во этажей: 12, Наибольшее кол-во этажей: 13, Новогиреево, Кол-во помещений: 198, Кол-во нежилых помещений: 8, Год ввода в эксплуатацию: 2014, 3-комн, Кол-во жилых помещений: 190, В+, дом 66, корпус 7, нет, да, да, да, да, нет, Имеется, Грузовых лифтов: 4, Год постройки: 2013, Перовская улица, 37.804224, 55.743461
Свяжитесь со мной на счет цены
10 дн.
T55S743461L37S804224T

На карте


Условия сделки

Источник


Старт продаж

Возможно заинтересует