Top.Mail.Ru

Перовская ул., д. 66, к. 3

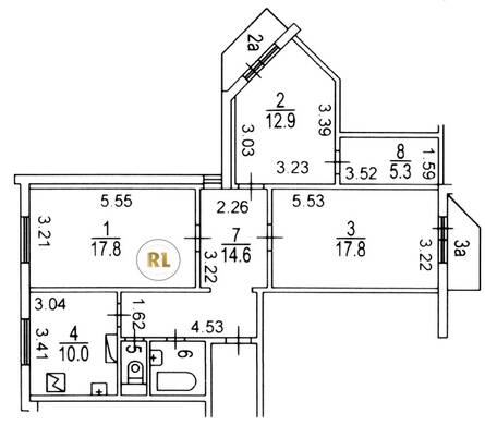
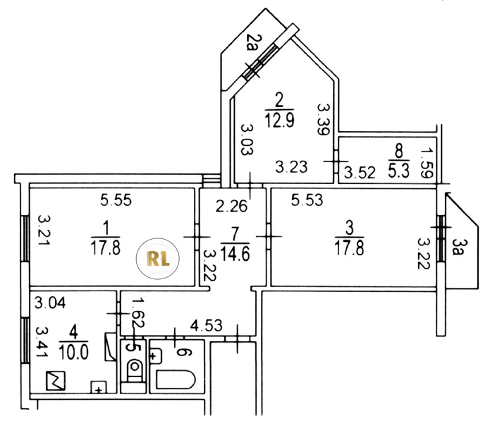
База каталог, Кол-во подъездов: 4, Отсутствует, П-3M, Москва, Новогиреево, Площадь парковки: 536, Пассажирский лифт: 4, От метро: 1410, Восточный, да, Наименьшее кол-во этажей: 13, Наибольшее кол-во этажей: 15, Перово, Кол-во помещений: 216, Кол-во нежилых помещений: 8, Год ввода в эксплуатацию: 2014, 3-комн, Кол-во жилых помещений: 208, В+, дом 66, корпус 3, нет, да, да, да, да, нет, Отсутствует, Грузовых лифтов: 4, Год постройки: 2013, Перовская улица, 37.799212, 55.743517
Свяжитесь со мной на счет цены
10 дн.
T55S743517L37S799212T

На карте


Условия сделки

Источник


Старт продаж

Возможно заинтересует