Top.Mail.Ru

улица Лазо, д. 10

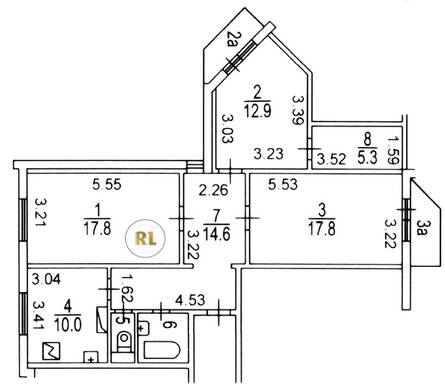
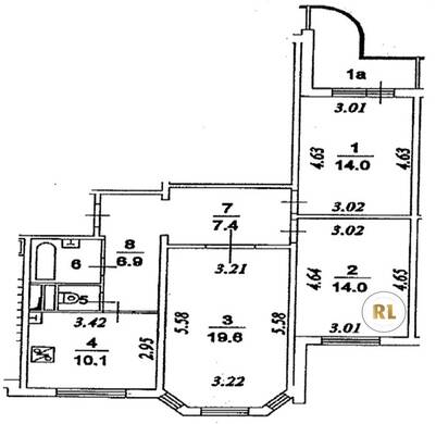
База каталог, Кол-во подъездов: 3, П-3M, Москва, Перово, Пассажирский лифт: 3, От метро: 1420, Восточный, да, Наименьшее кол-во этажей: 12, Наибольшее кол-во этажей: 12, Перово, Кол-во помещений: 145, Кол-во нежилых помещений: 1, Год ввода в эксплуатацию: 2004, 3-комн, Кол-во жилых помещений: 144, дом 10, нет, да, да, да, да, нет, Грузовых лифтов: 3, Год постройки: 2004, улица Лазо, 37.770376, 55.743553
17 000 000 Р
10 дн.
T55S743553L37S770376T
+

На карте


Условия сделки

Источник