Top.Mail.Ru

улица Большая Ордынка, д. 13/9, стр. 1

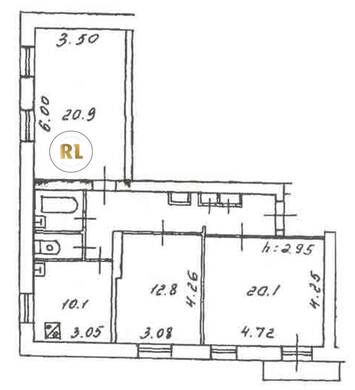
База каталог, Кол-во подъездов: 4, Отсутствует, II-05, Москва, Замоскворечье, Площадь парковки: 0, Пассажирский лифт: 4, От метро: 390, Центральный, нет, Наименьшее кол-во этажей: 0, Наибольшее кол-во этажей: 6, Третьяковская, Кол-во помещений: 67, Кол-во нежилых помещений: 16, Год ввода в эксплуатацию: 1908, 3-комн, Кол-во жилых помещений: 51, Не присвоен, дом 13/9, строение 1, да, да, да, да, да, да, Имеется, Грузовых лифтов: 0, Год постройки: 1908, улица Большая Ордынка, 37.625217, 55.743598
Свяжитесь со мной на счет цены
10 дн.
T55S743598L37S625217T

На карте


Условия сделки

Источник


Старт продаж

Возможно заинтересует