Top.Mail.Ru

Перовская ул., д. 66, к. 8

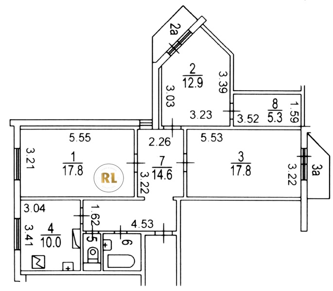
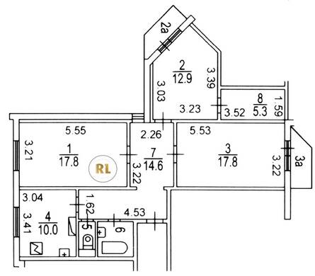
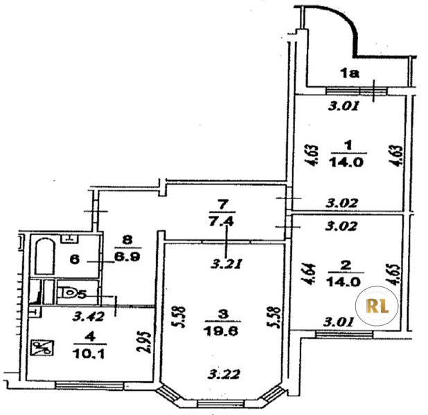
База каталог, Кол-во подъездов: 5, Отсутствует, П-3M, Москва, Новогиреево, Площадь парковки: 476, Пассажирский лифт: 5, От метро: 1450, Восточный, да, Наименьшее кол-во этажей: 12, Наибольшее кол-во этажей: 13, Новогиреево, Кол-во помещений: 286, Кол-во нежилых помещений: 10, Год ввода в эксплуатацию: 2014, 3-комн, Кол-во жилых помещений: 276, В+, дом 66, корпус 8, нет, да, да, да, да, нет, Отсутствует, Грузовых лифтов: 5, Год постройки: 2013, Перовская улица, 37.805769, 55.743907
Свяжитесь со мной на счет цены
10 дн.
T55S743907L37S805769T

На карте


Условия сделки

Источник


Старт продаж

Возможно заинтересует