Top.Mail.Ru

Новокосинская ул., д. 47

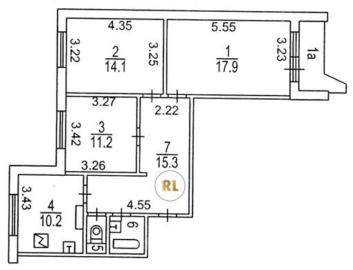
База каталог, Кол-во подъездов: 5, Имеется, П-44-1/17, Москва, Новокосино, Площадь парковки: 0, Пассажирский лифт: 5, От метро: 670, Восточный, нет, Наименьшее кол-во этажей: 17, Наибольшее кол-во этажей: 17, Новокосино, Кол-во помещений: 327, Кол-во нежилых помещений: 9, Год ввода в эксплуатацию: 1987, 3-комн, Кол-во жилых помещений: 318, В, дом 47, нет, да, да, да, да, да, Имеется, Грузовых лифтов: 5, Год постройки: 1987, Новокосинская улица, 37.874464, 55.743928
Свяжитесь со мной на счет цены
10 дн.
T55S743928L37S874464T

На карте


Условия сделки

Источник


Старт продаж

Возможно заинтересует