Top.Mail.Ru

Перовская ул., д. 66, к. 6

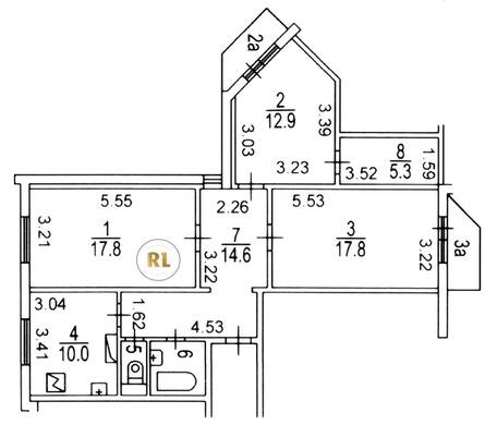
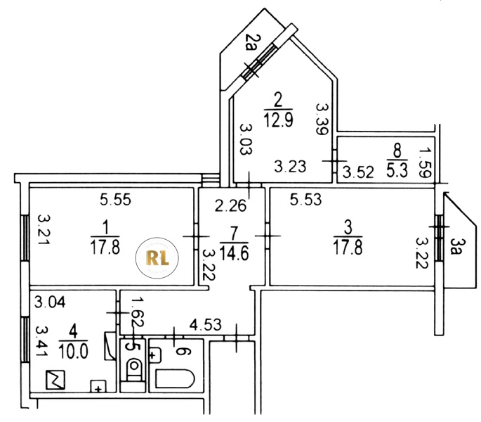
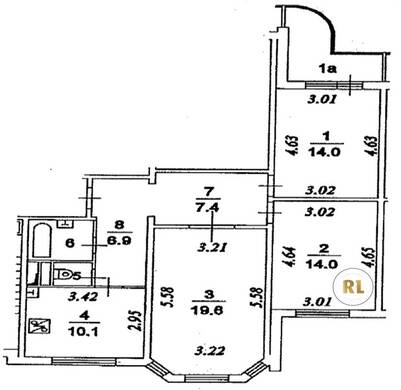
База каталог, Кол-во подъездов: 5, Имеется, П-3M, Москва, Новогиреево, Площадь парковки: 410, Пассажирский лифт: 5, От метро: 1450, Восточный, да, Наименьшее кол-во этажей: 12, Наибольшее кол-во этажей: 14, Новогиреево, Кол-во помещений: 254, Кол-во нежилых помещений: 10, Год ввода в эксплуатацию: 2013, 3-комн, Кол-во жилых помещений: 244, В+, дом 66, корпус 6, нет, да, да, да, да, нет, Имеется, Грузовых лифтов: 5, Год постройки: 2013, Перовская улица, 37.803317, 55.744191
Свяжитесь со мной на счет цены
10 дн.
T55S744191L37S803317T

На карте


Условия сделки

Источник


Старт продаж

Возможно заинтересует