Top.Mail.Ru

Перовская ул., д. 66, к. 5

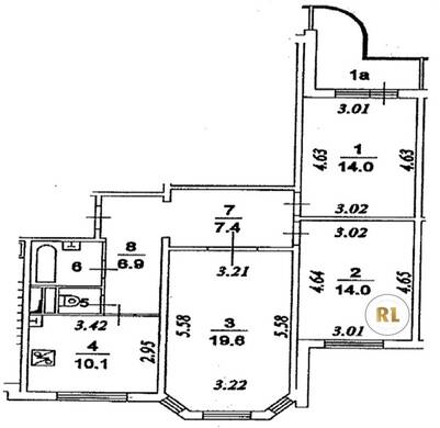
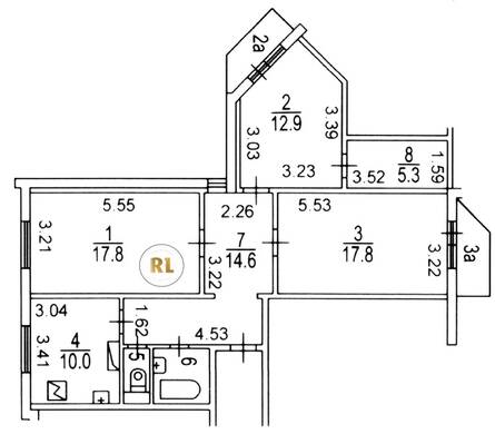
База каталог, Кол-во подъездов: 4, Отсутствует, П-3M, Москва, Новогиреево, Площадь парковки: 242, Пассажирский лифт: 4, От метро: 1510, Восточный, да, Наименьшее кол-во этажей: 13, Наибольшее кол-во этажей: 15, Перово, Кол-во помещений: 216, Кол-во нежилых помещений: 8, Год ввода в эксплуатацию: 2013, 3-комн, Кол-во жилых помещений: 208, В+, дом 66, корпус 5, нет, да, да, да, да, нет, Отсутствует, Грузовых лифтов: 4, Год постройки: 2013, Перовская улица, 37.801529, 55.744206
Свяжитесь со мной на счет цены
10 дн.
T55S744206L37S801529T

На карте


Условия сделки

Источник


Старт продаж

Возможно заинтересует