Top.Mail.Ru

Новокосинская ул., д. 49

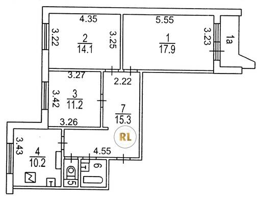
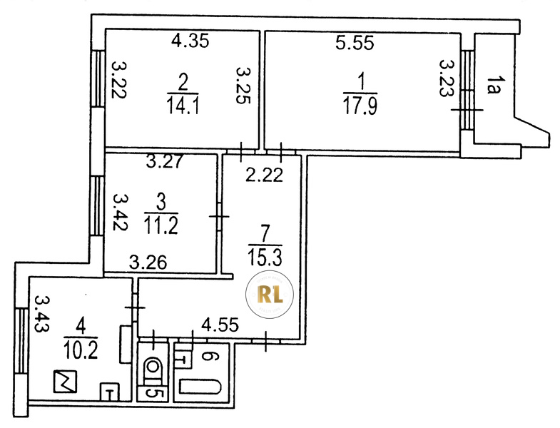
База каталог, Кол-во подъездов: 4, Имеется, П-44-1/17, Москва, Новокосино, Площадь парковки: 0, Пассажирский лифт: 4, От метро: 810, Восточный, нет, Наименьшее кол-во этажей: 17, Наибольшее кол-во этажей: 17, Новокосино, Кол-во помещений: 266, Кол-во нежилых помещений: 2, Год ввода в эксплуатацию: 1987, 3-комн, Кол-во жилых помещений: 264, D, дом 49, нет, да, да, да, да, да, Имеется, Грузовых лифтов: 4, Год постройки: 1987, Новокосинская улица, 37.876611, 55.744237
Свяжитесь со мной на счет цены
10 дн.
T55S744237L37S876611T

На карте


Условия сделки

Источник


Старт продаж

Возможно заинтересует