Top.Mail.Ru

улица Плющева, д. 10, к. 2

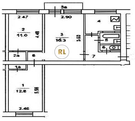
База каталог, Кол-во подъездов: 3, I-511, Москва, Перово, Пассажирский лифт: 0, От метро: 1800, Восточный, да, Наименьшее кол-во этажей: 5, Наибольшее кол-во этажей: 5, Шоссе Энтузиастов, Кол-во помещений: 130, Кол-во нежилых помещений: 0, Год ввода в эксплуатацию: 1968, 3-комн, Кол-во жилых помещений: 130, дом 10, корпус 2, нет, да, да, да, нет, нет, Грузовых лифтов: 0, Год постройки: 1968, улица Плющева, 37.760081, 55.744505
Свяжитесь со мной на счет цены
10 дн.
T55S744505L37S760081T

На карте


Условия сделки

Источник


Старт продаж

Возможно заинтересует