Top.Mail.Ru

Суздальская ул., д. 34, к. 2

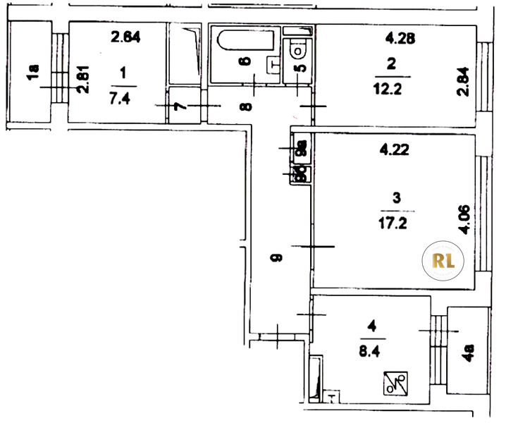
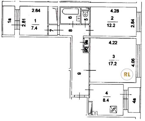
База каталог, Кол-во подъездов: 4, Имеется, П-30, Москва, Новокосино, Площадь парковки: 0, Пассажирский лифт: 8, От метро: 130, Восточный, нет, Наименьшее кол-во этажей: 14, Наибольшее кол-во этажей: 14, Новокосино, Кол-во помещений: 194, Кол-во нежилых помещений: 12, Год ввода в эксплуатацию: 1987, 3-комн, Кол-во жилых помещений: 182, E, дом 34, корпус 2, да, да, да, да, да, да, Имеется, Грузовых лифтов: 0, Год постройки: 1987, Суздальская улица, 37.868014, 55.744556
17 900 000 Р
10 дн.
T55S744556L37S868014T
+

На карте


Условия сделки

Источник


Старт продаж