Top.Mail.Ru

Суздальская ул., д. 40, к. 2

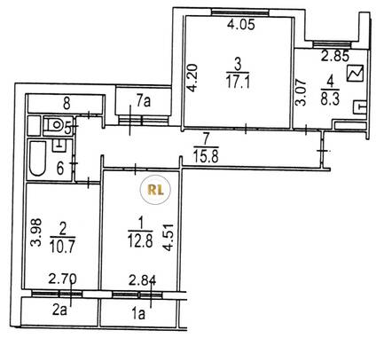
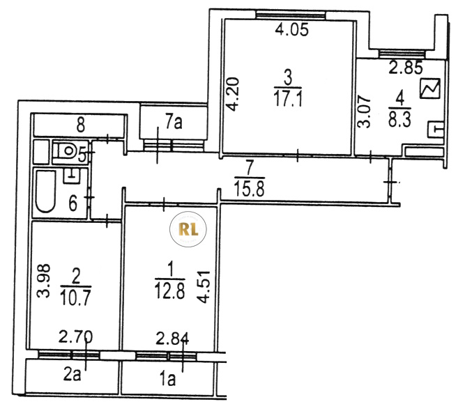
База каталог, Кол-во подъездов: 4, Имеется, П-55, Москва, Новокосино, Площадь парковки: 0, Пассажирский лифт: 8, От метро: 600, Восточный, нет, Наименьшее кол-во этажей: 14, Наибольшее кол-во этажей: 14, Новокосино, Кол-во помещений: 192, Кол-во нежилых помещений: 10, Год ввода в эксплуатацию: 1987, 3-комн, Кол-во жилых помещений: 182, D, дом 40, корпус 2, нет, да, да, да, да, да, Имеется, Грузовых лифтов: 0, Год постройки: 1987, Суздальская улица, 37.875056, 55.745909
Свяжитесь со мной на счет цены
10 дн.
T55S745909L37S875056T

На карте


Условия сделки

Источник


Старт продаж

Возможно заинтересует