Top.Mail.Ru

Перовская ул., д. 22, к. 2

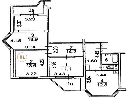
База каталог, Кол-во подъездов: 3, П-44T, Москва, Перово, Площадь парковки: 0, Пассажирский лифт: 3, От метро: 1260, Восточный, нет, Наименьшее кол-во этажей: 17, Наибольшее кол-во этажей: 17, Перово, Кол-во помещений: 203, Кол-во нежилых помещений: 1, Год ввода в эксплуатацию: 2002, 3-комн, Кол-во жилых помещений: 202, D, дом 22, корпус 2, нет, да, да, да, да, нет, Грузовых лифтов: 3, Год постройки: 2002, Перовская улица, 37.768777, 55.746218
Свяжитесь со мной на счет цены
10 дн.
T55S746218L37S768777T

На карте


Условия сделки

Источник


Старт продаж

Возможно заинтересует