Top.Mail.Ru

улица Алексея Дикого, д. 18

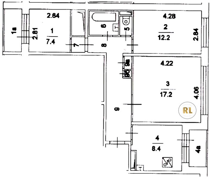
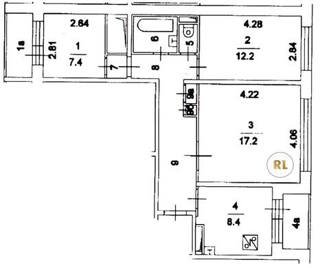
База каталог, Кол-во подъездов: 3, П-30, Москва, Новогиреево, Площадь парковки: 0, Пассажирский лифт: 6, От метро: 680, Восточный, нет, Наименьшее кол-во этажей: 12, Наибольшее кол-во этажей: 12, Новогиреево, Кол-во помещений: 144, Кол-во нежилых помещений: 1, Год ввода в эксплуатацию: 1983, 3-комн, Кол-во жилых помещений: 143, дом 18, нет, да, да, да, да, да, Имеется, Грузовых лифтов: 0, Год постройки: 1983, улица Алексея Дикого, 37.811716, 55.746639
Свяжитесь со мной на счет цены
10 дн.
T55S746639L37S811716T

На карте


Условия сделки

Источник


Старт продаж

Возможно заинтересует