Top.Mail.Ru

Перовская ул., д. 25

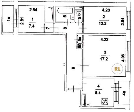
База каталог, Кол-во подъездов: 5, П-30, Москва, Перово, Пассажирский лифт: 5, От метро: 1110, Восточный, да, Наименьшее кол-во этажей: 12, Наибольшее кол-во этажей: 12, Перово, Кол-во помещений: 218, Кол-во нежилых помещений: 3, Год ввода в эксплуатацию: 1985, 3-комн, Кол-во жилых помещений: 215, дом 25, нет, да, да, да, да, нет, Грузовых лифтов: 5, Год постройки: 1985, Перовская улица, 37.770555, 55.746917
Свяжитесь со мной на счет цены
10 дн.
T55S746917L37S770555T

На карте


Условия сделки

Источник


Старт продаж

Возможно заинтересует