Top.Mail.Ru

Перовская ул., д. 29, к. 2

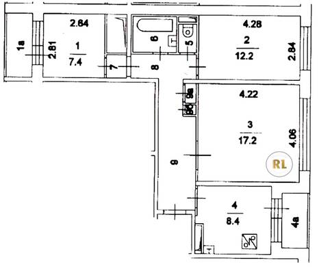
База каталог, Кол-во подъездов: 2, П-30, Москва, Перово, Пассажирский лифт: 4, От метро: 900, Восточный, да, Наименьшее кол-во этажей: 12, Наибольшее кол-во этажей: 12, Перово, Кол-во помещений: 96, Кол-во нежилых помещений: 1, Год ввода в эксплуатацию: 1985, 3-комн, Кол-во жилых помещений: 95, дом 29, корпус 2, нет, да, да, да, да, да, Грузовых лифтов: 0, Год постройки: 1985, Перовская улица, 37.773807, 55.746988
Свяжитесь со мной на счет цены
10 дн.
T55S746988L37S773807T

На карте


Условия сделки

Источник


Старт продаж

Возможно заинтересует